Stare Miasto ▪ 3 pokoje ▪ 54,06 mkw ▪ 1 piętro ▪ 839 000 zł
Dzielnica: Wrocław, Stare Miasto, Szczepin
Termin oddania: VI 2026
Cena: 839 000 zł
Liczba pokoi: 3
Powierzchnia: 54,06 m2
Piętro: 1
Ilość kondygnacji 9
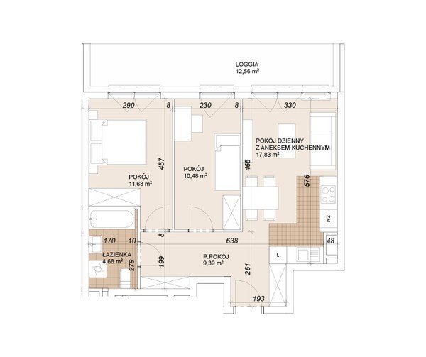
Balkon / Taras: 12,56 mkw
Garaż: miejsca parkingowe
Komórki: tak
Winda: tak
Jeśli szukasz wygodnego mieszkania dwupokojowego na nowoczesnym osiedlu, z pełną infrastrukturą, w centrum miasta, z dostępem do terenów spacerowych nad Odrą - zapraszam do kontaktu
Stare Miasto, centrum miasta, tuż przy Odrze. Przyjazne i bardzo atrakcyjne osiedle.
MIESZKANIE
Mieszkanie dwupokojowe , o powierzchni 48,73 mkw z balkonem 12,56 mkw
Funkcjonalny, świetny rozkład, 3 piętro
- pokój dzienny z aneksem kuchennym 29,77 mkw
- pokój 10,43 mkw
całość uzupełnia łazienka 4,56 mkw i przedpokój 3,97 mkw
do mieszkania przynależy balkon 12,56 mkw dostępny z obu pokoi
cena 749 000 zł
INWESTYCJA
Budynek 9 piętrowy, winda
Nowoczesna architektura, duże przeszklenia, jasne elewacje,
Wszystkie mieszkania posiadają balkony
Garaż podziemny, rowerownia
Zagospodarowane osiedlowe tereny wspólne - nasadzenia drzew i krzewów, ławeczki, plac zabaw
Blisko centrum - kultura, rozrywka, i wszelkie atrakcje miasta dostępne bez problemu
Tereny spacerowe nad Odrą i pobliskie parki - Popowicki i Zachodni - zachęcają do aktywnego wypoczynku
LOKALIZACJA i KOMUNIKACJA
- w pobliżu dwa parki Zachodni i Popowicki
- bezpośrednie sąsiedztwo terenów spacerowych nad Odrą
- komunikacja miejska - ok. 500 metrów, linia tramwajowa 18 i 19, przystanek autobusowy linie 103, 104, 122, 127, 245, C, stacja kolejowa Szczepin
- samochodem - ok. 15 min do Dworca Głównego, ok. 10 min do Rynku
- szybki dojazd do ul. Legnickiej i połączenie z AOW, lotniskiem, i S8
INFRASTRUKTURA, SKLEPY I USŁUGI
- Kaufland - 4 min samochodem, 15 min pieszo
- CH Magnolia - 10 min samochodem
- Hala Orbita - 8 min samochodem
- Wroclavia - 13 min samochodem, 27 min tramwajem - linia 18
Szczegóły w trybie indywidualnych zapytań.
To proste: skontaktuj się, określ swoje parametry - w zamian wybierzemy ofertę dopasowaną do Twoich potrzeb.
Mamy szeroką bazę inwestycji deweloperskich,
Wszelkie informacje których potrzebujesz masz w jednym miejscu.
Nie płacisz prowizji, nie płacisz podatku PCC, oferty bezpośrednio od dewelopera.
Doradzamy, towarzyszymy i wspieramy na każdym etapie zmierzającym do zamknięcia procesu zakupu.
Serdecznie zapraszam
Magda tel. 882 144 644
*zamieszczone zdjęcia są wizualizacjami mogącymi stanowić wyłącznie inspirację przy wykańczaniu wnętrz.
* informacje zawarte w ogłoszeniu mają charakter jedynie informacyjny, mogą podlegać aktualizacji i nie stanowią oferty w rozumieniu art. 66 i następnych Kodeksu Cywilnego





